熱海市伊豆山中古戸建 南東向き リフォーム済みの美室6SLDK 2×4工法採用 JR「熱海」駅よりバス13分、「中七尾」バス停徒歩4分 2025年11月リフォーム済  / 2,580万円の一戸建て アタミリゾートナビ



おすすめ ペット可 山を望む リフォーム済み 
 熱海伊豆山の高台に立地。JR「熱海」駅よりバス13分、バス停「中七尾」徒歩約4分とアクセスも良好です。緑豊かな自然に囲まれた環境のなかで雄大な相模湾を望むロケーション!室内からも眼下に広がる相模湾を一望することができます!〜2025年11月リフォーム済み〜

熱海市伊豆山 相模湾を望む中古戸建6SLDK 2×4工法採用 リフォーム済みの美室

熱海市伊豆山中古戸建 南東向き リフォーム済みの美室6SLDK 2×4工法採用 JR「熱海」駅よりバス13分、「中七尾」バス停徒歩4分 2025年11月リフォーム済 

価格 2,580万円
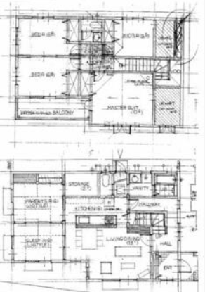
間取 6SLDK
間取り図を確認
敷地/延床 199.24m2 / 158.42m2
完成年 2001年9月(築)
建物向き -
階数 2階建
所在地 静岡県熱海市伊豆山1090
地図で確認
問合せNO A1808


南東向き 陽当り良好です!駐車場2台有
「中七尾」バス停より徒歩約4分
1階 リビング・ダイニング・キッチン
1階 リビング・ダイニング・キッチン
1階 リビング・ダイニング・キッチン
1階 和室
1階 和室
2階 洋室
2階 洋室
  玄関
  階段上の天井には天窓があります。
  食洗機付システムキッチン・IHクッキングヒーター
  1階 脱衣室・浴室
  1階 トイレ〜温水洗浄便座
  玄関
  2階 洋室からの眺望
 


間取り図 6SLDK
間取図をクリックすると拡大します
おすすめ ペット可 山を望む リフォーム済み 
COMENT
熱海伊豆山の高台に立地。JR「熱海」駅よりバス13分、バス停「中七尾」徒歩約4分とアクセスも良好です。緑豊かな自然に囲まれた環境のなかで雄大な相模湾を望むロケーション!室内からも眼下に広がる相模湾を一望することができます!〜2025年11月リフォーム済み〜

お問合せの際は『アタミのホームページを見て』と付け加えると<>詳細や情報がスムーズに分かります。

お問合わせNO:A1808


この物件の
アピールポイント!
熱海市伊豆山より相模湾を望む中古戸建6SLDKのご紹介です。高い耐震性を持つ2×4工法採用、2025年11月リフォーム済み、すぐに使用できるきれいな状態になっています。東南向きで陽当りも良好です。白を基調とした内装、窓も多くあり室内は明るい印象です!〜駐車場2台分有〜

所在地
静岡県熱海市伊豆山1090
交通
JR東海道本線 熱海
間取り詳細
-
種別
中古一戸建て
構造
木造
階数
2階建
接道状況
-
土地権利
所有権
現況
空家
用途地域
第二種中高層住居専用地域
引渡し
相談
駐車場
-
取引態様
仲介
テラス面積
-
専用庭面積
-
建ぺい率
60(%)
容積率
200(%)
管理態様
- (管理会社:-)
その他費用
設備・条件
フローリング/バス・トイレ別/2階以上/ペット相談可

情報更新日:2026年01月24日 次回更新予定日:2026年02月07日
※各種情報と差異がある場合は現況優先となります

熱海 不動産 TOPお気に入りMYページお問合せ会社概要売却査定アクセス個人情報の取扱い熱海の別荘