熱海市桜町 海と花火を望む2階建て住宅3LDK 駐車場1台分有り JR「熱海」駅より車約6分(2.8q) バス停「神社前」より徒歩4分 スーパー・コンビニ・小学校・病院など徒歩圏内 ファミリー世代に嬉しい物件です! / 1,690万円の一戸建て アタミリゾートナビ



花火が見える 海が見える おすすめ ペット可 駐車場 山を望む 
 熱海中心地より山手エリア、定住者の多い閑静な住宅地です。JR伊東線「熱海」駅より車で約6分(2.8q)、バス停より徒歩約4分とアクセスも良好です。スーパー、コンビニ、病院、小学校など徒歩圏内、熱海市内循環バスも運行しています。 ■インホメーション:マックスバリュエクスプレス熱海小嵐店:徒歩7分/637m セブンイレブン熱海小嵐店:徒歩7分/505m 熱海所記念病院:徒歩11分/858m 熱海市立第二小学校:徒歩7分/525m

熱海市桜町 海と花火を望む2階建て住宅 3LDK  〜駐車場1台分有り〜

熱海市桜町 海と花火を望む2階建て住宅3LDK 駐車場1台分有り JR「熱海」駅より車約6分(2.8q) バス停「神社前」より徒歩4分 スーパー・コンビニ・小学校・病院など徒歩圏内 ファミリー世代に嬉しい物件です!

価格 1,690万円
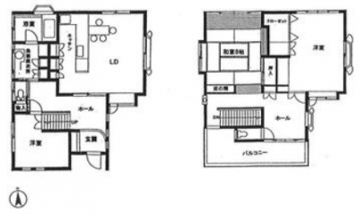
間取 3LDK
間取り図を確認
敷地/延床 143.63m2 / 124.34m2
完成年 1998年1月(築)
建物向き -
階数 2階建
所在地 静岡県熱海市桜町
地図で確認
問合せNO B2846


外観
バルコニーからの眺望
1階 リビング・ダイニング
1階 洋室
2階 洋室
2階 広縁付き和室
2階 ホール
1階 ホール
玄関
L字型システムキッチン
洗面脱衣室
浴室
トイレ〜温水洗浄便座
バルコニー
バルコニー〜水栓付き


間取り図 3LDK
間取図をクリックすると拡大します
花火が見える 海が見える おすすめ ペット可 駐車場 山を望む 
COMENT
熱海中心地より山手エリア、定住者の多い閑静な住宅地です。JR伊東線「熱海」駅より車で約6分(2.8q)、バス停より徒歩約4分とアクセスも良好です。スーパー、コンビニ、病院、小学校など徒歩圏内、熱海市内循環バスも運行しています。 ■インホメーション:マックスバリュエクスプレス熱海小嵐店:徒歩7分/637m セブンイレブン熱海小嵐店:徒歩7分/505m 熱海所記念病院:徒歩11分/858m 熱海市立第二小学校:徒歩7分/525m

お問合せの際は『アタミのホームページを見て』と付け加えると<>詳細や情報がスムーズに分かります。

お問合わせNO:B2846


この物件の
アピールポイント!
熱海市桜町 海と花火を望む高台の2階建て住宅のご紹介です。熱海中心地より山手住宅エリア、定住者が多い閑静な住宅地。南側前面道路で陽当りも良好です。収納を備えた居室はゆったりとした広さで快適、子供部屋にもピッタリです。駐車場は1台分有り、子育て世代に嬉しい物件です!

所在地
静岡県熱海市桜町
交通
JR東海道本線 熱海
間取り詳細
-
種別
中古一戸建て
構造
木造
階数
2階建
接道状況
-
土地権利
所有権
現況
空家
用途地域
第二種住居地域
引渡し
相談
駐車場
取引態様
仲介
テラス面積
-
専用庭面積
-
建ぺい率
60(%)
容積率
200(%)
管理態様
- (管理会社:-)
その他費用
設備・条件
フローリング/バス・トイレ別/ガスキッチン/2階以上/南向き/ペット相談可/花火が見える/海が見える

情報更新日:2025年11月29日 次回更新予定日:2025年12月13日
※各種情報と差異がある場合は現況優先となります

熱海 不動産 TOPお気に入りMYページお問合せ会社概要売却査定アクセス個人情報の取扱い熱海の別荘