熱海市桃山町 中古戸建て JR「熱海」駅より徒歩8分 車4分 2006年4月築 海・温泉・花火を望む3SLDK シャッター付ガレージ完備 3台駐車可能 パティオ・ウッドデッキ付 温泉引込済 リフォーム履歴書あり / 13,000万円の一戸建て アタミリゾートナビ



花火が見える 温泉付き 海が見える おすすめ 駐車場 駅近 リフォーム済み 
 熱海駅周辺の希少エリア物件〜1年を通して温暖な気候の熱海。熱海駅の山手に位置する桃山町は、緑豊かな自然に囲まれており、四季折々の季節が楽しめます。春には道端の桜が見事な花を咲かせてくれます。JR「熱海」駅より徒歩約8分、周辺には別荘や保養所も点在し、車の通りもそれほど多くない静かな環境です。

2006年4月築 熱海市桃山町 〜海・温泉・花火を望む中古戸建て〜

熱海市桃山町 中古戸建て JR「熱海」駅より徒歩8分 車4分 2006年4月築 海・温泉・花火を望む3SLDK シャッター付ガレージ完備 3台駐車可能 パティオ・ウッドデッキ付 温泉引込済 リフォーム履歴書あり

価格 13,000万円
間取 3SLDK
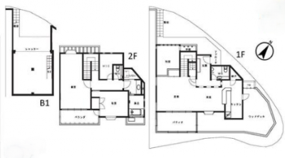
間取り図を確認
敷地/延床 209.29m2 / 152.26m2
完成年 2006年4月(築)
建物向き -
階数 2階建
所在地 静岡県熱海市桃山町
地図で確認
問合せNO B2818


室内
室内
室内
キッチン
洗面台
浴室
ウッドデッキ
外観 シャッター付ガレージ完備(3台可)
     パティオから望む熱海海上花火大会


間取図をクリックすると拡大します
花火が見える 温泉付き 海が見える おすすめ 駐車場 駅近 リフォーム済み 
COMENT
熱海駅周辺の希少エリア物件〜1年を通して温暖な気候の熱海。熱海駅の山手に位置する桃山町は、緑豊かな自然に囲まれており、四季折々の季節が楽しめます。春には道端の桜が見事な花を咲かせてくれます。JR「熱海」駅より徒歩約8分、周辺には別荘や保養所も点在し、車の通りもそれほど多くない静かな環境です。

お問合せの際は『アタミのホームページを見て』と付け加えると<>詳細や情報がスムーズに分かります。

お問合わせNO:B2818


この物件の
アピールポイント!
2006年4月築 熱海市桃山町 〜海・温泉・花火を望む中古戸建3SLDKのご紹介です。開放感あふれるリビングは天高2.55m、パティオ・ウッドデッキも備わっています。眼下にひらける熱海の街並み、海、花火大会、美しい夜景も楽しめます! 〜温泉は引き込み、熱海の温泉をたっぷり満喫できます! ■シャッター付ガレージ完備/3台駐車可能/パティオ・ウッドデッキ/リフォーム履歴あり

所在地
静岡県熱海市桃山町
交通
JR東海道本線 熱海
間取り詳細
-
種別
中古一戸建て
構造
木造
階数
2階建
接道状況
-
土地権利
所有権
現況
居住中
用途地域
第一種中高層住居専用地域
引渡し
相談
駐車場
取引態様
仲介
テラス面積
-
専用庭面積
-
建ぺい率
60(%)
容積率
200(%)
管理態様
- (管理会社:-)
その他費用
■温泉引込済 温泉基本料金:15000円/月(40立方迄) 超過料600円/1立方 温泉権譲渡費用:60万円 組合加入金(個人50万円・法人100万円)
設備・条件
フローリング/バス・トイレ別/ガスキッチン/2階以上/花火が見える/温泉付き/海が見える

情報更新日:2025年08月29日 次回更新予定日:2025年09月12日
※各種情報と差異がある場合は現況優先となります

熱海 不動産 TOPお気に入りMYページお問合せ会社概要売却査定アクセス個人情報の取扱い熱海の別荘