
平成2年築 伊豆山鉢アラク分譲地 熱海の海と花火を望む中古邸宅 平成18年全面改装! |
熱海市伊豆山鉢アラク分譲地 相模湾、花火一望の邸宅 土地面積353坪 地下1階付4階建(約91坪) 温泉引込済 JR「熱海」駅より徒歩14分(1.2q) 別荘・保養所・多世帯住宅 平成18年全面改装! 室内綺麗! サウナ付き石風呂の大型浴室 ソーラー発電機設備設置 屋根付きカーポート(車3〜5台駐車可) 第2種娯楽レクリエーション地区・旅館業可能 |
| 価格 |
39,000万円
|
| 間取 |
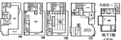
4SLDK
間取り図を確認 |
| 敷地/延床 |
974.9m2 / 300.29m2 |
| 完成年 |
2006年4月(築) |
| 建物向き |
- |
| 階数 |
4階建 |
| 所在地 |
静岡県熱海市伊豆山 地図で確認 |
| 問合せNO |
B2870 |
 |
|